【博藝新作】平湖壹號|160m2用光穿越空間 讓暗黑系也自帶溫度
——
小區名稱—平湖壹號
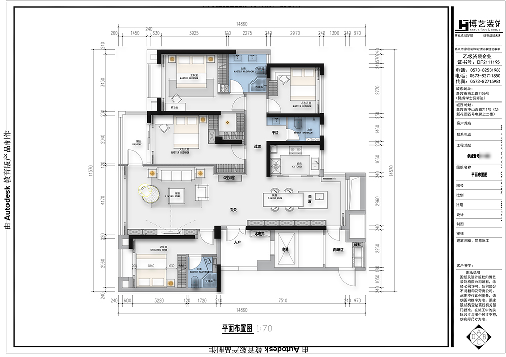
戶型面積—160m2
裝修風格—現代
設計師—姚曉琴
項目經理—邱培芳
裝修公司—博藝裝飾
實景攝影—Beny
1. 這個戶型是三代同堂六口人居住,我們保留了戶型四房的格局。為了讓公區更加寬敞舒適,我們打通了一半的南陽臺,擴充到了客廳。另外一半留給臥室做了休閑陽臺。
2. 同時,我們保留了三個衛生間,主衛做了雙臺盆,公衛做了干濕分離,滿足各個時段家人之間的需求。
3. 打通北陽臺,餐廳以整排餐邊柜,島臺,餐桌的形式來呈現。
4. 主人房和父母房都以獨立的套房形式存在,保留各自的生活習慣。
5. 改變玄關位置,讓玄關既起到觀景作用,背面又擴容進女兒房,兼顧美觀和實用。
▌客廳
打通南北陽臺,采用開放式的設計,將整個公共區域融洽得組合在一起。用石材、巖板,格柵,玻璃,板材等基材,再輔以布藝,真皮,軟墊,在整個沉穩硬朗的基調中注入溫潤舒適,使之達到平衡。
▌餐廳
島臺的設置讓整個餐廳空間形成了洄游動線,在島臺配置洗手池,在下方放置儲物空間。和孩子們做個烘培,和愛人洗個水果,喝個下午茶,和老人吃個早餐……有家人的陪伴和參與,烹飪也不再是一個“苦差事”。
▌廚房
廚房曾被稱之為家里最孤獨的地方,但是隨著互動式家居設計的流行,這種孤獨感也逐漸在被打破。六口之家,家里開火的時間很多,用四聯動的玻璃移門進行隔斷。熱愛生活的人都熱愛烹飪,而熱愛烹飪的人總是懂生活的人。島臺冰箱外置,形成了很大的拿取洗切煮的大動線,再多人參與都不再話下。陽光和煦,微風浮動,菜香四溢,家人圍坐,我想這就是幸福的味道吧。
匆忙的生活總是在歸家后放慢腳步,平和自身的心態。白天見慣了各色浮躁的色彩,我們更渴望純凈的世界。黑白灰的純粹俘獲內心,撫平焦慮,讓心歸于平靜。
家人之間,我們需要親密無間,同時我們也要為彼此創造各自獨自的生活。主人房和父母房做了單獨套房,各配備了獨立衛生間。作為家里的公衛,我們做了干濕分離,也修飾了原本狹長的過道,使得整個過道空間看上去更為寬敞。
姚曉琴
博藝裝飾平湖設計部經理
設計理念:只做能“落地”的設計。
從業時間:16年
代表案例:海德城聯排、東湖雅苑、濱江萬家花城、龍湖春江華庭、平湖壹號、東湖半島、東湖明珠 、錦繡莊園別墅…
邀約量房:
微信直接回復:地址+面積+姓名+手機號
或咨詢電話/微信:13372313151 博藝裝飾






