御華名都|450m2 “墅”造 “簡”與“奢”的平衡 相聚獨處兼相宜
“簡”與“奢”
是人們對極致的追求、挑戰和超越……
↓
—
小區名稱—御華名都
戶型面積—450m2
裝修風格—現代
設計師—于俊
項目經理—李小六
裝修公司—博藝裝飾
實景攝影—Beny /鄧開基
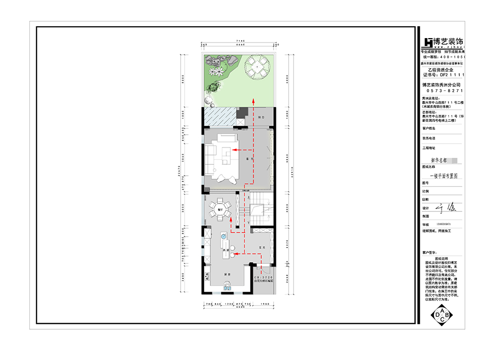
一 樓
這是一套聯排別墅案例,地面三層,地下一層。我們在一樓主要規劃了公區的設計,戶外景觀花園,觀景,品茗都無比愜意。中西廚的設計,滿足家人之間不同的需求。客廳處做了下沉式設計,讓整個客廳層高更高,更加氣派。用數步臺階移步到餐廳,讓聚餐更有儀式感。
▍客 廳



設計師以經典的黑白灰色調入手,調和著現代住宅對于低調質感生活的追求。通過合理運用玻璃,石材,格柵,不銹鋼,布藝,皮質等不同材質,融合進整個一樓公區。無主燈的設計搭配下沉式空間,讓整個客廳區域彰顯氣質。電視機的黑色大理石背景和沙發的白色大理石背景遙相呼應,在黑白之間,打造無限延伸的空間感。
整個公區我們盡量讓視野開闊,避免采用生硬的隔斷,從而讓整個空間更加整體。我們更多得采用玻璃等通透的材質,讓光線貫穿,陽光正好,微風不燥。
▍餐 廳
開放式的島臺作為廚房和餐廳之間的過度,也保留了西廚的使用功能。
中國人向來講求天圓地方,整面的落地窗讓室內一直都有均勻的光線,也給餐廳注入新的溫度。當餐廳上升騰起熱氣,彌漫開香味,我想這才是生活的痕跡。
▍樓 梯
二 樓
二樓兩個朝南采光最好的位置留給孩子。兩個房間呈現對稱的套房設計,兩個獨立的衛浴空間搭配臥室和休閑空間,再加上獨立書房的配置,讓彼此既有獨處的空間,又不影響兄弟間的共同成長。
▍兒童房
兩個兒童房呈現對稱設計,幾乎復刻了功能,但是又有細微的差別,這種求大同存小異的設計理念,也是主人一家的生活態度。我們始終覺得家里的每個人都需要一個自己獨處的空間,也需要有連接親情的共同場所。
▍書 房


除了各自的臥室洗漱空間,二樓的書房是兄弟倆共用。我們選擇了較大臺面的空間,可以讓他們共同學習工作,就像一條無形的紐帶,把家人之間的關系凝集地更加緊密。
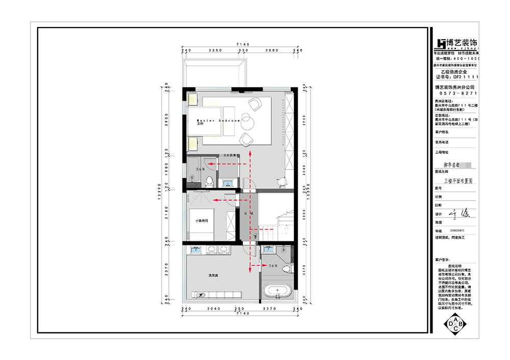
三 樓

三樓則是做了一個主人的大套房設計,主衛做了干濕分離,干區用長虹玻璃進行隔斷,增加整個干區采光。在床尾設置了簡單的工作區,偶爾可以安靜辦個公。在主臥外,還涉及了一個小的休息間,可供平時偶然午休打個盹。北面空間則留做了洗衣房和浴室,泡完澡直接進把洗漱完的衣物留在洗衣房,動線一氣呵成。
▍主 臥



主臥用了一整個大套房的設計,休息區,收納區,洗漱區,晾曬區,小憩區,安排得井井有條。整個色系布置都靜謐寧靜,用白色為主基調,摻進細膩的奶咖色,平添了層次感,讓空間一下柔了起來。
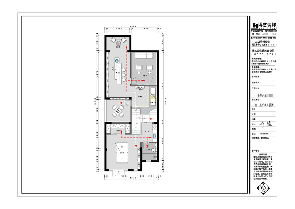
地下室

地下室主要規劃成了一家人的休閑空間,影視廳,臺球室,水吧臺,所有的休閑娛樂設施應有盡有,滿足了全家人的休閑時光。
▍茶 室


▍娛 樂 室
如果說生活還可以延展,那么撇開居住的功能需求,地下室則是一個非常好的休閑娛樂樞紐,涵蓋了影音室,臺球室,水吧臺等等空間,非常適合朋友聚會。同時為了避免地下空間的天然光線不足,擺脫地下室沉悶的刻板印象,整個樓梯從三樓環繞貫穿,在地下空間形成好看的天井觀景區,清晨陽光灑落,綠植錯落,沐浴陽光,生機盎然。
本案設計師
于 俊
博藝首席設計師
設計理念/ 設計源于生活,融與生活。
從業時間/ 16年
代表案例/ 中梁壹號院瑜璟墅、秀湖印象、弘璽臺、上湖軒、秀悅灣、秀湖金茂府、江南國際城、朗潤園、久鏡園…
邀約量房:
微信直接回復:地址+面積+姓名+手機號
或咨詢電話/微信:13372313151 博藝裝飾






