百福公寓 90m2|95后的婚房,告訴你小家顯大的秘訣
——
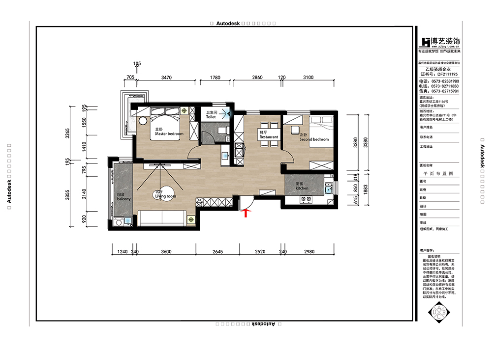
小區名稱—百福公寓
戶型面積—90m2
裝修風格—現代
設計 師—王芳
項目經理—謝林坤
裝修公司—博藝裝飾
實景攝影—Beny / 鄧開基
▼
1.重新規劃空間,使生活動線更流暢;
2.原始的餐廳位置改為門廳,打開玄關空間;
3.將原來儲藏間的位置改為餐廳,增加西廚區,豐富廚房功能;
4.衛生間改為干濕分離,釋放空間;
5.次臥做成兒童房,滿足生活需求。
▊ 客 廳
打通了南陽臺,把餐廳往內移,客廳一下從視野上打開。選用了大面積的米色墻面,營造寧靜而柔和的氛圍。全屋通鋪地板,以及同色系柜子,搭配去茶幾化的設計讓客廳更具松弛感。
沙發后背懸放的藝術畫作,紅與黑的碰撞,質樸的風格和簡單的色系,起到了點睛作用,一個大紅色的邊幾一下成為客廳的視覺中心,又與畫作互相呼應,偶爾放個水果,喝個咖啡,功能足夠,同時又不顯得凌亂。沙發上三盞射燈射下,客廳也一下有了儀式感。
▊ 餐 廳
進門后把餐廳往內移,建立緩沖區,也增添了回家的儀式感。餐桌選用圓潤的邊角,網紅的倉迪加爾椅營造舒適的就餐環境,崇尚“斷舍離”的現代,簡單精致的生活就足夠平添溫馨和詩意。半透明的簾布柔化了自然光的直射,將陽光雨露都化成生活自然的濾鏡。
把西廚和冰箱位置安置在了餐廳,上面整齊的陳列展示著主人一家的生活品味和知性情趣。隨處可見的喜字也宣告著主人甜蜜幸福的婚姻生活的開啟。
▊ 廚 房
把冰箱挪出廚房后,廚房面積也一下開闊了,木色的櫥柜面和白色的臺面在灰色的墻面背景下相映成趣,營造了干凈整潔的烹飪環境。
▊ 臥 室
主臥色系延續了客廳的奶茶色系,靜謐柔和。主臥利用了飄窗位,一個專屬女主人的化妝間就應運而生,在黑與白的空間里,是女主人對美的極致追求。
▊ 衛 浴
木質地板的自然紋理和光澤,給整個家居帶來了沉穩的基調,公區與衛生間之間用了長虹玻璃門,透光的同時,兼顧了美觀。
▊ 本案設計師
王芳
博藝裝飾整裝設計師
設計理念:與空間對話,拉近與生活的距離。
從業時間:19年
代表案例:
晴雪園、百福公寓、格蘭上郡、田樂自建房、王江涇自建房、天驕花園、翰林蘭亭…
邀約量房:
微信直接回復:地址+面積+姓名+手機號
或咨詢電話/微信:13372313151 博藝裝飾






