【博藝實景】140㎡ 新中國際 《簡雅·生活》
房子之于人,是理性的需求,也是情感的訴求。設計師以“簡斂優雅”為設計主軸,以低度彩色與溫潤木感作為空間基底,構筑舒適溫潤之空間,在有限的空間內,讓舒適感得到最大化的表達。
[所在城市]:嘉興
[項目名稱]:新中國際
[設計風格]:現代簡約
[房屋面積]:140m2
[項目設計]:博藝裝飾工程有限公司
[主案設計]:張芳
[實景攝影]:Beny
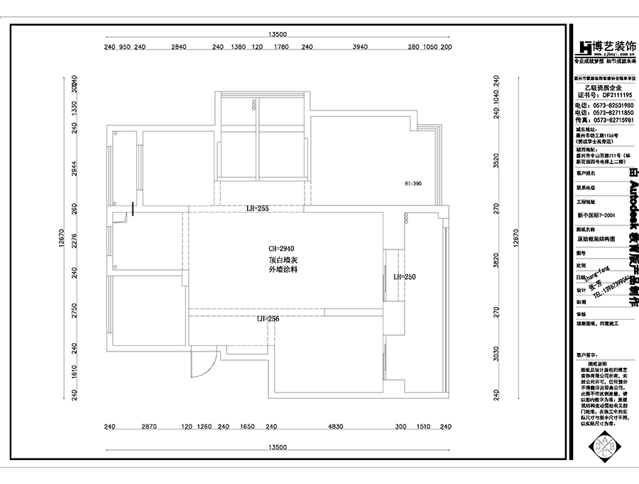
▼ 原始結構圖
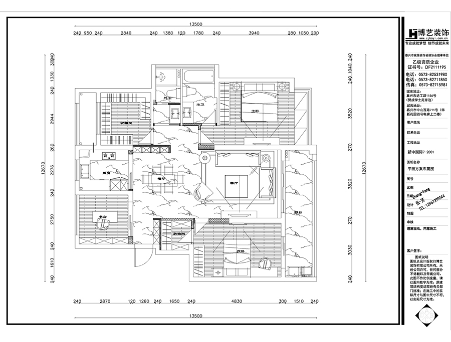
▼ 平面布置圖
▼ 客廳
簡單的色塊與利落的線條,用木作的溫度包融石材的冷淡,以“簡、斂”之手法,把溫暖與寧靜留在家里。
▼ 餐廳
白色的空間讓寧靜延續,包融喧鬧也溫暖孤單,在這里細品家的味道……
▼ 臥室
▼廚房
▼ 衛生間
臨窗舒適的泡澡,讓你在都市喧囂之外,偷得一寸輕松。
邀約量房:
微信直接回復:地址+面積+姓名+手機號
或咨詢電話/微信:13372313151 博藝裝飾






