【博藝裝飾】嘉善?大眾湖濱?300m2?|?歐式輕奢,華而不凡
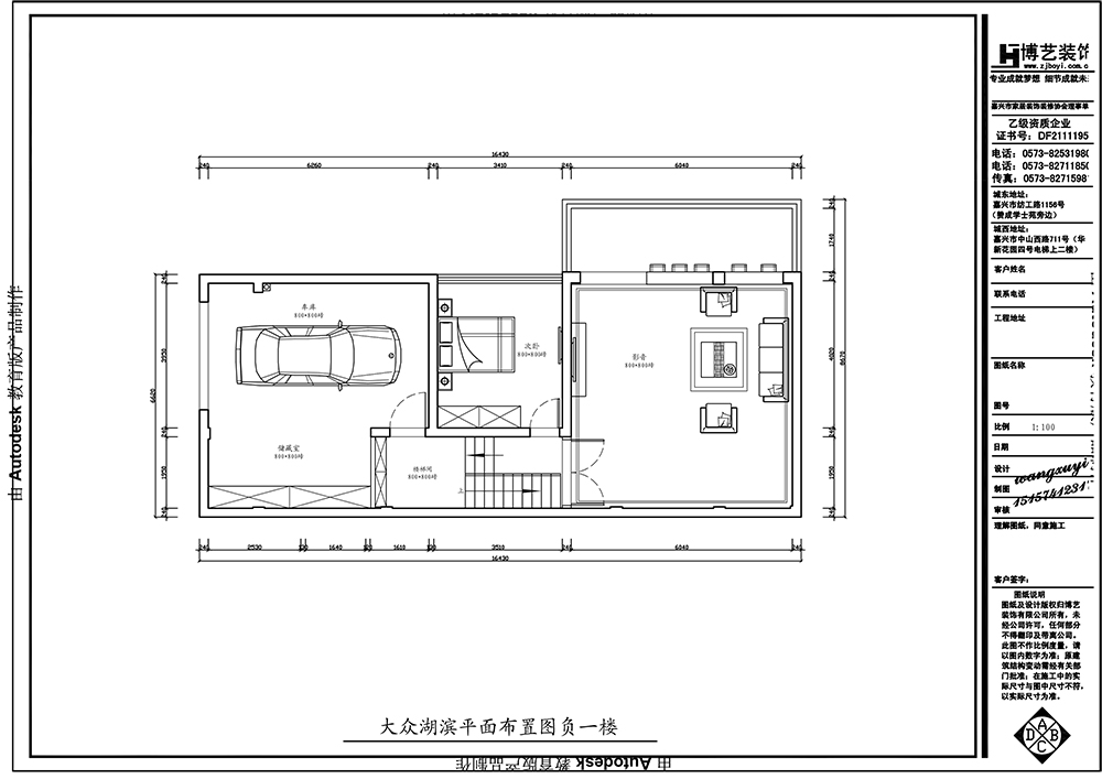
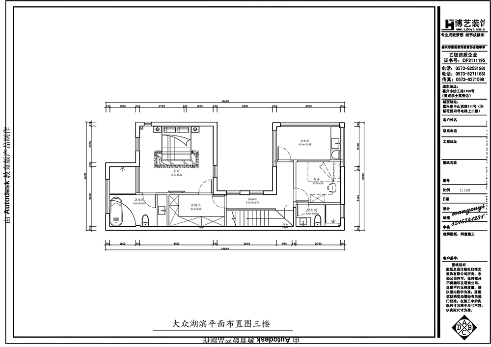
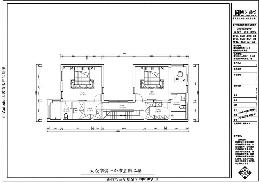
本案是一套四層復式,負一層為休閑娛樂區,一層做會客用餐區,二、三層為生活起居區。
設計師以古典歐式為設計底蘊,以簡約的線條代替復雜的花紋,采用更為明快清新的顏色,演繹著現代生活的浪漫與舒適。
____________________________________________________________________________________________________
小區名稱| 嘉善?大眾湖濱
戶型面積| 300m2
裝修風格| 歐式
設 計 師| 王旭益
項目經理| 屈國衛
項目質檢| 陸麗君
裝修公司| 博藝裝飾
實景攝影| Beny、鄧開基
~ 客 廳
進入客廳,以簡約的線條勾勒出空間感和立體感,大理石的獨特質感和紋理彰顯空間的尊貴氣息。
古典氣派的歐式家具,配以精美的雕飾,復古中不失時尚的基調,體現出優雅與雋永的氣度。
~ 餐 廳




餐廳在客廳與廚房之間,只在地面做簡單的過渡,作為不同功能區的區別,視覺上更顯通透敞亮。圓形的懸浮吊頂,簡潔優雅,寓意團圓美好。

L型超長料理臺,即使多人操作也不顯擁擠,中西廚的配置,烹飪更加游刃有余。
島臺的設計既可做輔助使用,也可作餐廳的功能延續。
微微上挑的吊頂,提升整體舒適度。床背景是木飾面與硬包的組合大氣優雅,集合復古的家具讓臥室空間更顯輕松溫馨。
~ 衛 生 間
~ 樓 梯
~ 本案設計師
王旭益
博藝設計部經理
設計理念:用他人的財富創造自己的價值。
從業時間:13年
代表案例:南京天泓山莊、東方天郡;南京綜合性環境設計事務所;鹽城招商中
心辦公樓;上海陽光威尼斯、寶宏家園、嘉定保利;嘉興永安期貨辦公中心、盛大花園頂復、格林小鎮頂復、翡翠花園聯排、羅馬都市、佳源都市、巴黎都市、東方普羅旺斯獨棟、紫園尚園復式、嘉善自建獨棟、中央花園頂復、臨江景苑多層復式、金都上品、大眾湖濱花園聯排、濱湖綠洲多層復式、塞納藍灣頂復、嘉華春曉多層復式、東方潤園聯排、學仕華莊獨棟、春曉苑聯排、世博帝寶復式、大樹星島花園獨棟、云瀾灣七里花苑聯排…
邀約量房:
微信直接回復:地址+面積+姓名+手機號
或咨詢電話/微信:13372313151 博藝裝飾






