【博藝實景】《隨·遇》康康280㎡ 別野 的生活哲學
[所在城市]:嘉興·嘉善
[項目名稱]:臨江景苑
[設計風格]:現代簡約
[房屋面積]:280m2
[項目設計]:博藝裝飾工程有限公司
[主案設計]:顏蘭懿
[實景攝影]:Beny
[項目主材]:歐神諾瓷磚、佳能暖通、歐派櫥柜/衣柜、方平軟裝、巨卓家具……
隨·遇
------------------------------------------------------------------------------------
想要一個家,可以避開紛擾,擺脫束縛,能聽驚濤拍岸,看云卷云舒,不必刻意,隨性自在。
——這是業主對理想中的家的暢想。
本案因為設計師與業主是比較熟悉朋友,所以配合起來比較默契,對業主的想法也是心領神會。
設計師以“隨遇而安,隨性自在”為主題,追求功能與審美的完美結合,讓家美到賞心悅目,方便到觸手可及,安逸舒適,自由愉悅。
空間上調整建筑原來的空間結構,重啟功能和居住空間組織,材料上面著重表現材質的質感和色彩的搭配,強調設計與生活的完美結合。
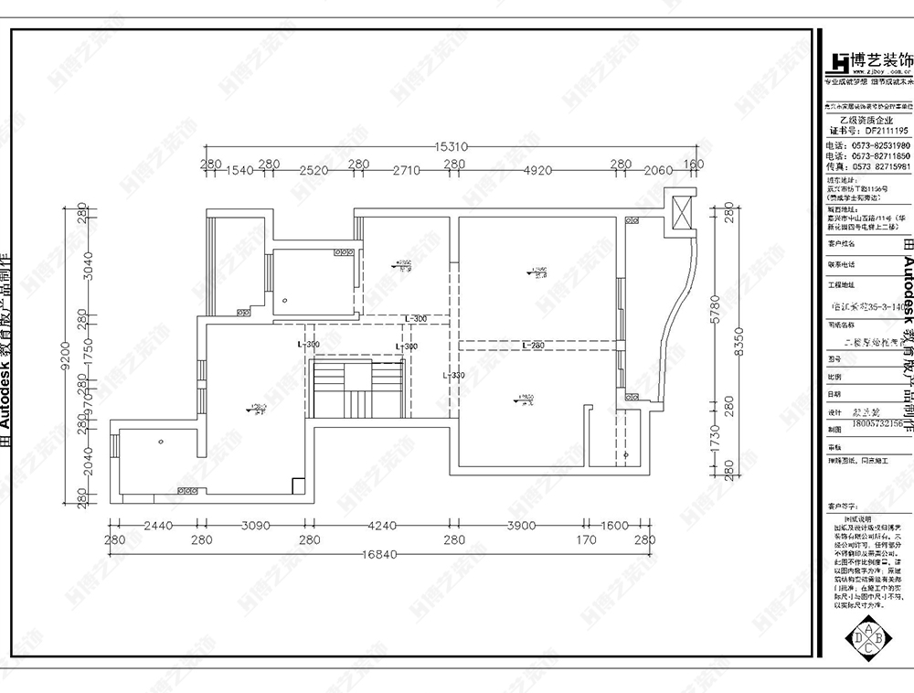
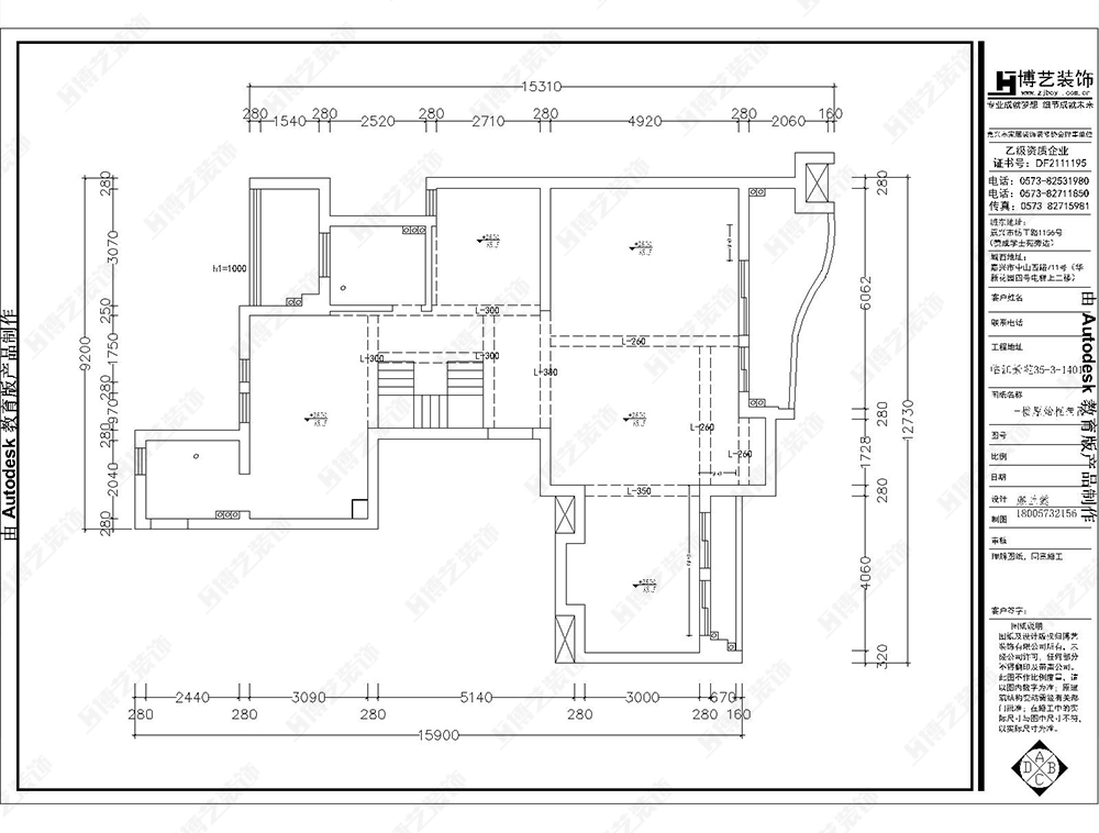
▼ 原始結構圖

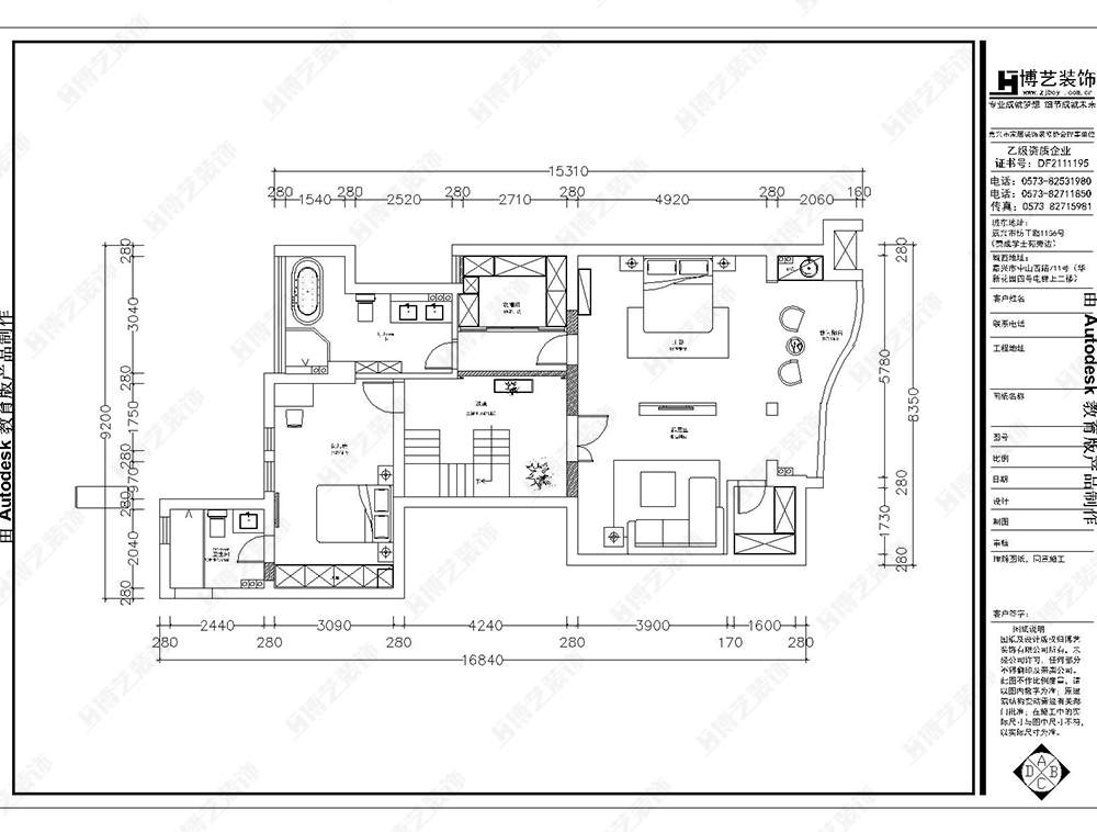
▼ 平面布置圖


▼ 客 廳
采光通透,布置簡約,設計師擯棄繁縟的裝修,用最簡單的基調,追求自然灑脫的居住狀態。
通過光線的暈染,讓黑色不顯沉悶,讓軟裝更加舒適,黑色與米色平衡了環境中的色彩,增加質感。
▼ 餐 廳
兩扇落地窗保證了餐廳充足的光線,就餐時的心情也會不自覺的明媚起來。黑色大理石餐桌讓空間變得沉穩,綠植的裝飾又增添了一份生機。

▼ 主 臥
臥室采用藍灰色墻面,搭配棕色木飾面與地毯,軟硬結合,彰顯主人氣質。紅色電視隔斷又調整了空間的亮度,搭配簡單的軟裝,不繁瑣,不簡單。

▼ 女兒房
女兒房以白色系為主,搭配了綠色墻面,清新自然,白色北極熊憨態可掬,女兒家的亭亭玉立一覽無遺。
▼ 兒子房
男孩子的房間則以咖啡色為主,從墻面到木飾面,不同的色調搭配出不同的層次,樸素又不失雅致。
▼ 衛生間
衛生間依舊用深色表現溫暖,泡上一個澡解除一天的疲乏,你的慵懶盡情釋放。
▼ 廚房
超長操作臺的設計拉開了空間維度,溫柔的燈光搭配灰色櫥柜,烹飪的心情都變得愉悅很多。
▼ 陽臺
大片的陽光,兩張吧椅,一杯咖啡,是屬于你的下午茶時間。
▼ 本案設計師介紹
顏蘭懿
博藝首席設計師
設計理念:讓 靈感自由釋放,創造一個心靈渴望的空間!
從業時間:10年
代表案例:羅馬都市、鉑金府邸、寶格麗公館、寶石公館、香緹世家…
邀約量房:
微信直接回復:地址+面積+姓名+手機號
或咨詢電話/微信:13372313151 博藝裝飾









